Friends of the Lebanon Public Library
Share
Donate to Children's Room Expansion
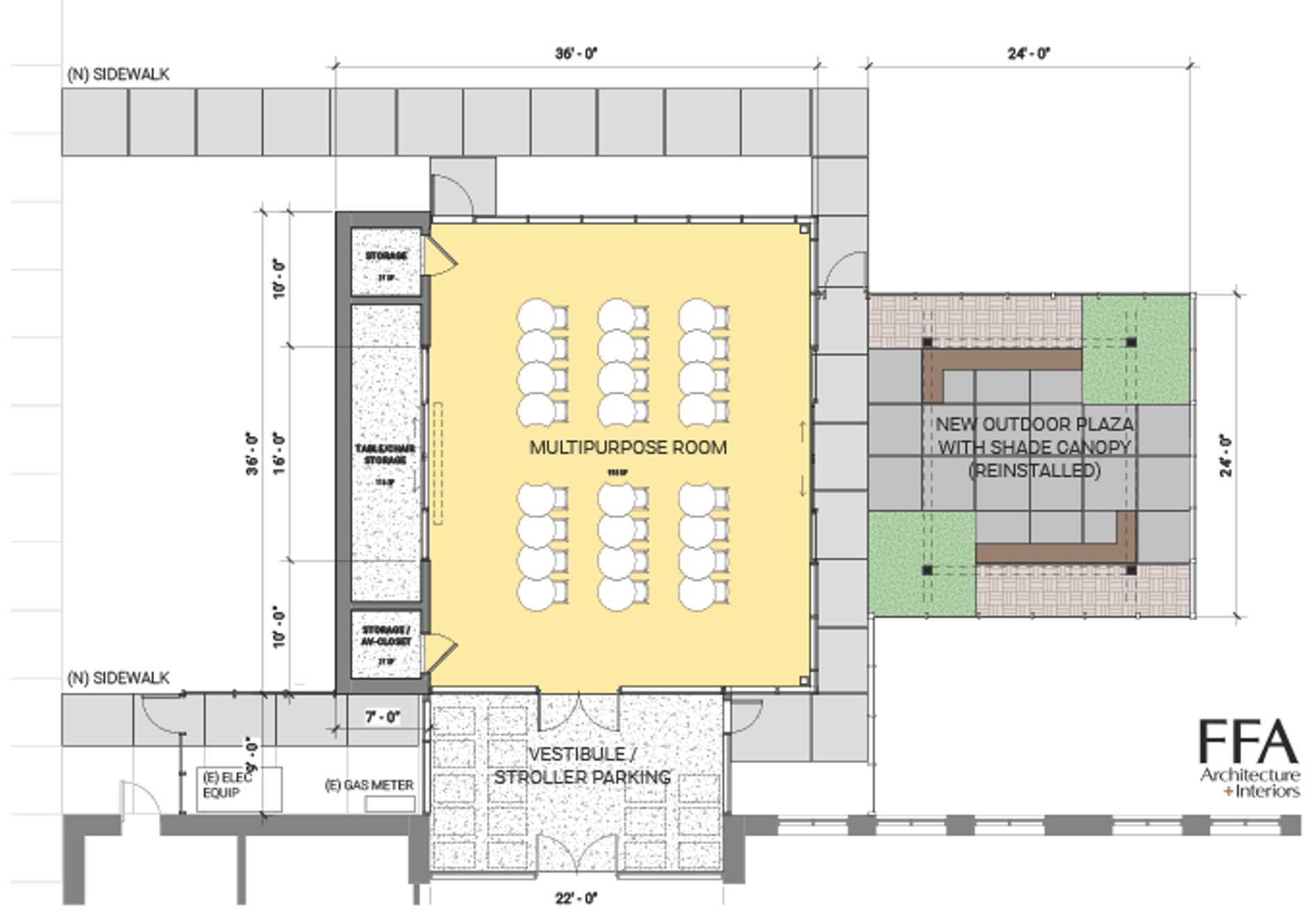
Your gift to the Friends will help us build a dedicated children's room onto the Lebanon Public Library. This long-term project will provide the Library with much-needed space to host their popular children’s programs, including Storytime, arts and crafts, STEM activities, tween and teen programs, and more.
The campaign needs to raise over $1.5 million to build the addition, and the Friends are doing their part to show community support. You can contribute to this campaign by donating to the Friends and/or purchasing items at our book sales and other fundraisers. Donations can be made online or mailed to the address below. All donations made to the Friends are tax deductible.

The new children's room provides gathering and activities space for over a hundred children and adults. It's designed to be a soundproof space that will foster a distraction free experience for all Library patrons. It also creates a new outdoor patio, a stroller storage area between the children's room and the Library, and many windows for parents to observe their children from outside.

Organized by Friends of the Lebanon Public Library
501(c)(3) Public Charity · EIN 93-0709889
[email protected]